阪神神明ビル
大阪メトロ御堂筋線と堺筋線にはさまれた西天満の西、国道1号線に面し、新御堂筋にも近い好立地にあるオフィスビル。近くには裁判所などがあり、落ち着いたビジネスエリアです。2001年には全面リニューアル工事を行い、耐震補強を実施しました。
北区は西天満、国道1号線に
面してたたずむ
端整なオフィスビル
ビルスペック
再エネ100%
100% 制震構造
専有部スペック
天井高2.45m
2.45m LED照明 個別空調
その他
警備員常駐
8:00~19:00
募集区画
| フロア | 用途 | 賃貸面積 | 入居可能時期 | VRツアー |
|---|
アクセス
- 所在地
大阪市北区西天満4丁目11番22号
Google Map- 交通手段
-
- 大阪メトロ御堂筋線「梅田」駅より徒歩約10分
- 大阪メトロ谷町線「東梅田」駅より徒歩7分
- JR東西線「北新地」駅より徒歩9分
建物概要
| 所在地 | 大阪市北区西天満4丁目11番22号 | 竣工 | 1977年11月 |
|---|---|---|---|
| 所有者 | 阪神電気鉄道株式会社 | 賃貸人 | 阪神電気鉄道株式会社 |
| 高さ | ― | 階数 | 地上9階 |
| 構造 | 鉄骨造、鉄骨鉄筋コンクリート造 | 建築面積 | ― |
| 基準階貸室 面積 |
約330㎡(約100坪) | 延床面積 | 約3,874㎡ |
| 設計 | 株式会社大林組 | 施工 | 株式会社大林組 |
専有部概要
|
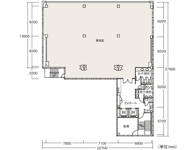
基準階平面図 ![]() |
|
| 天井高 | 2,450mm |
|---|---|
| OAフロア | 40mm |
| 床荷重 | 300kg/㎡ |
| 電気容量 | 50VA/㎡ |
| 照明 | LED |
| 空調方式 | 個別空調方式 |
その他ビル情報
| 正面開放時間 | (月-土)8:00-19:00 (日祝・12/31~1/3)閉鎖 |
エレベーター | 乗用EV 2台 |
|---|---|---|---|
| 車寄せ | なし | ||
| 入退館管理 | 有人管理、機械警備、キーカード | 貸会議室 | なし |
| 入退室時間 | 24時間(1階正面口) | ワーカー専用ラウンジ | なし |
| セキュリティカード | 契約時5枚無料 追加2,000円 | ||
| 空調運転時間 | ― | ||
| 喫煙スペース | なし | ||
| 駐車場 | なし |
| 正面開放時間 | (月-土)8:00-19:00 (日祝・12/31~1/3)閉鎖 |
|---|---|
| エレベーター | 乗用EV 2台 |
| 入退館管理 | 有人管理、機械警備、キーカード |
| 入退室時間 | 24時間(1階正面口) |
| セキュリティカード | 契約時5枚無料 追加2,000円 |
| 車寄せ | なし |
| 空調運転時間 | ― |
| 貸会議室 | なし |
| 喫煙スペース | なし |
| 駐車場 | なし |
| ワーカー専用ラウンジ | なし |
ビルの特徴
鉄道でも車でも
便利なロケーション
大阪メトロ御堂筋線と堺筋線にはさまれた西天満の西、国道1号線に面し、新御堂筋にも近い好立地にあるオフィスビル。梅田のターミナルはもとより、新御堂筋にもほど近く、徒歩でも車でも便利なロケーションです。近くには裁判所などがあり、落ち着いたビジネスエリアです。
柔軟性と快適性を備えた
安心のオフィス空間
約330㎡のゆとりある無柱フロアは、最大3分割までのレイアウト変更が可能。
フリーアクセスフロアや光回線を完備し、OA機器の増設にも柔軟に対応します。
空調は個別制御の24時間対応型で、時間帯を問わず快適な環境を維持。
さらに、高セキュリティのカードキーシステムを採用し、24時間自由な入退室と安心のセキュリティを実現しています。
再生可能エネルギー由来の
電力を採用しています
阪急阪神のオフィスでは、
全ビルを対象として、ビルの共用部だけでなく、
テナント専有部も含めた建物全体の電力を対象とした再生可能エネルギー由来の電力を採用しています。
この再生可能エネルギー由来の電力は「トラッキング付非化石証書」の活用により実質的に再エネ化された電力です。
これにより、建物所有者と入居企業が一体となって脱炭素社会の実現に取り組んでいきます。










