阪神福島駅ビル
阪神福島駅、JR福島駅、JR新福島駅と鉄道3駅、また国道2号線沿い、なにわ筋もすぐと、好立地にあるオフィスビル。トイレや給湯室が貸室内に完備されておりますので、他社を気にせずご利用いただけます。
鉄道・車ともに
アクセス抜群なオフィスビル
ビルスペック
新耐震基準 再エネ100%
100% 土日祝開館
専有部スペック
天井高2.7m
2.7m LED照明 個別空調
募集区画
| フロア | 用途 | 賃貸面積 | 入居可能時期 | 目安人数 |
|---|
アクセス
- 所在地
大阪市福島区福島5丁目1番12号
Google Map- 交通手段
-
- 阪神本線「福島」駅より徒歩約1分
- JR東西線「新福島」駅より徒歩約3分
- JR大阪環状線「福島」駅より徒歩約5分
建物概要
| 所在地 | 大阪市福島区福島5丁目1番12号 | 竣工 | 1994年1月 |
|---|---|---|---|
| 所有者 | 阪神電気鉄道株式会社 | 賃貸人 | 阪神電気鉄道株式会社 |
| 高さ | ― | 階数 | 地下1階 地上9階 |
| 構造 | 鉄骨鉄筋コンクリート造 | 建築面積 | ― |
| 基準階貸室 面積 |
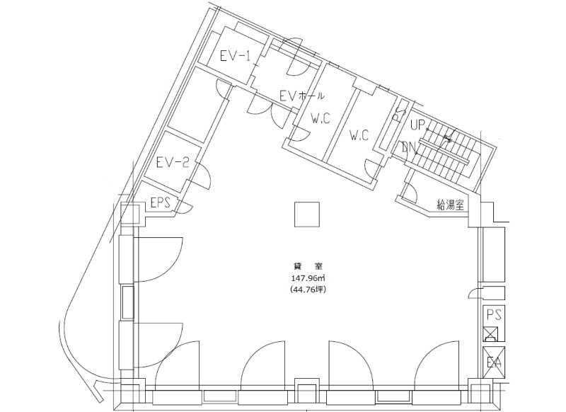
147.96㎡(約44.76坪) | 延床面積 | 1,494.17㎡ |
| 設計 | ― | 施工 | ― |
専有部概要
|
基準階平面図 ![]() |
|
| 天井高 | 2,700mm(一部2,400mm) |
|---|---|
| OAフロア | 50mm |
| 床荷重 | ― |
| 電気容量 | ― |
| 照明 | LED |
| 空調方式 | 個別空調方式 |
その他ビル情報
| 正面開放時間 | (月-土)7:00-21:00 (日祝・12/31~1/3)閉鎖 |
エレベーター | 1基 |
|---|---|---|---|
| 車寄せ | なし | ||
| 入退館管理 | 機械警備、キーカード | 貸会議室 | なし |
| 入退室時間 | 24時間(1階正面口) | ワーカー専用ラウンジ | なし |
| セキュリティカード | 契約時5枚無料 追加2,000円 | ||
| 空調運転時間 | ― | ||
| 喫煙スペース | なし | ||
| 駐車場 | なし |
| 正面開放時間 | (月-土)7:00-21:00 (日祝・12/31~1/3)閉鎖 |
|---|---|
| エレベーター | 1基 |
| 入退館管理 | 機械警備、キーカード |
| 入退室時間 | 24時間(1階正面口) |
| セキュリティカード | 契約時5枚無料 追加2,000円 |
| 車寄せ | なし |
| 空調運転時間 | ― |
| 貸会議室 | なし |
| 喫煙スペース | なし |
| 駐車場 | なし |
| ワーカー専用ラウンジ | なし |
ビルの特徴
鉄道・車ともにアクセス抜群な
オフィスビル
阪神「福島」駅直近。その他、JR「福島」駅・「新福島」駅からも徒歩5分以内。国道2号線沿い、なにわ筋へもすぐのため、車でのアクセスも抜群です。
快適性と安全性を両立した
スマートオフィス環境
ALSOKのIDカードシステムを採用し、扉の施開錠に連動してエレベーターの着床階を自動制御。高度なセキュリティ体制で、安心してご利用いただけます。また、個別制御の空調システムを導入し、24時間いつでも自由な温度設定が可能。快適なオフィス環境をサポートします。トイレや給湯室が貸室内に完備されておりますので、他社を気にせずご利用いただけます。
再生可能エネルギー由来の
電力を採用しています
阪急阪神のオフィスでは、
全ビルを対象として、ビルの共用部だけでなく、
テナント専有部も含めた建物全体の電力を対象とした再生可能エネルギー由来の電力を採用しています。
この再生可能エネルギー由来の電力は「トラッキング付非化石証書」の活用により実質的に再エネ化された電力です。
これにより、建物所有者と入居企業が一体となって脱炭素社会の実現に取り組んでいきます。









